Oplysninger
Dejlig 3-værelses LEJLIGHED I HIRTSHALS.
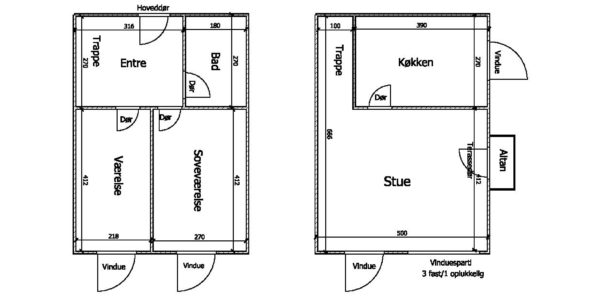
Flot lejlighed i 2 plan. I stuen er der 2 gode værelser og flot badeværelse med plads til vaskemaskine. På 1. sal er der stort køkken med plads til spisebord samt stue med udgang til altan, hvorfra der er havudsigt.
Hårde hvidevarer: komfur og emhætte samt køleskab.
Ledig
Depositum: 16.050,00 DKK (3 måneders husleje)
Husleje: 5.350,00 DKK
Vand: 500,00 DKK
I alt: 5.850,00 DKK
El og varme afregnes direkte til forsyningsselskaberne.














