Oplysninger
DEJLIG 3-VÆRELSES LEJLIGHED I HIRTSHALS.
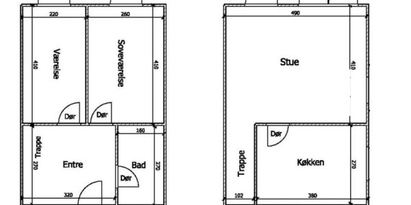
Flot lejlighed i 2 plan. I stuen er der 2 gode værelser og flot badeværelse. På 1. sal er der stort køkken med plads til spisebord samt stor stue. Der er lyst trægulv i stuen, lyst linoleum i køkkenet og tæpper på værelserne.
Hårde hvidevarer: komfur og emhætte.
Ledig 1/4-26
Depositum: 14.497,77 DKK (3 måneders husleje)
Husleje: 4.832,59 DKK
Vand a conto: 350,00 DKK
I alt: 5.182,59 DKK
El afregnes direkte til Hirtshals Elforsyning og varme direkte til Hirtshals Fjernvarme.


